房天下>北京案例列表>【龙湖双珑原著】现代简约 别墅 345㎡
1/8

【龙湖双珑原著】现代简约 别墅 345㎡

本案设计风格为简约现代风格,二层为静区、一层、地下为动区,整体空间贯穿木墙板、灰色石材与白色的大色调,整体营造简练、硬朗的视觉冲击效果,局部采用色彩穿插点缀,使整体空间变得灵动趣味,层次分明。
地下活动室,此处为小主人的活动区域,跳舞健身的活动范围,为了让空间视线连贯选用了落地镜面,通过空间的镜像空间无线延伸...
此空间为客厅区域,整体墙面贯穿木墙板,地面大量的石材铺至整个通道尽头,与墙面木板形成了强烈的视觉对比,尽头的黑白对比画作更是画龙点睛之笔。
此区域为地下活动室的休息区,整体墙面贯穿了木墙板,左侧书架满足主人在休息区也能读书的爱好,右侧小天井区域为储藏和品酒区,可以在闲暇之余小酌
此空间为客厅区域,整体墙面贯穿木墙板,主墙放置了壁炉,岩板与木质材质的强烈对比更凸显了现代简约的极致气息;右侧是封闭的书柜,满足女主人喜欢点线面的整齐整洁感,并满足收纳的诉求。
此空间为餐厅区域,贯穿整体墙面木墙板与地面大量的石材一直延伸进了厨房,与厨房白色材质完美的结合在一起,在丰富视觉空间的同时强化了简约的主旨
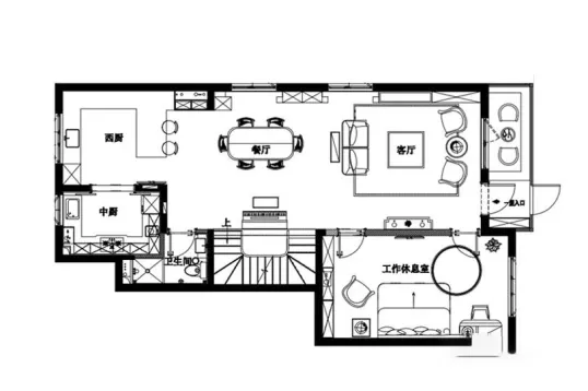
一层空间为动区,日间活动休憩、就餐、读书弹琴均在此空间,客厅连接地面花园,开门即可通往户外,外面为公共区域不允许做门廊玄关,室内空间亦不宜做内玄关,因此在通道尽头做了远玄关
地下室为全家的活动区,及生活区,预留了保姆的休憩、工作的区域,一门为界,右侧区域为主人活动区、可健身跳舞、看片、小酌...
二楼为全家的睡眠休憩区,儿卧原户型分割琐碎局促,设计把墙体拆除增加学习收纳融为一个大的空间,从空间上划分区域,让整体更开阔大气
装修案例报价:103万元
装饰公司:博洛尼整体家装旗舰店(北四新总店)
地址:北京市北京朝阳区鼎成路9号世纪宝鼎底商

#现代 #别墅

2020-04-06 举报

说点什么...

00
在线咨询