房天下>北京案例列表>京城雅居别墅250平简欧风格设计方案
1/9

京城雅居别墅250平简欧风格设计方案

业主需求:要求装修简约大气,彰显品位 设计理念:和客户深入沟通后,确定简欧风格,采用浅黄色调的暖色系,合理规划生活空间 预算说明:15万 包含人工 辅料 水电改造 防水 墙地砖的铺贴 造型设计等,同时配置第三方监理服务
京城雅居别墅250平简欧风格设计方案客厅设计 在别墅的设计中没有太多的复杂的肌理与装饰,简单的欧式风情就足以让我们能感受到优雅的氛围,让简欧的感觉包围着我们,使得整体效果比预想的还要好。在别墅中尽量采
京城雅居别墅250平简欧风格设计方案在别墅的设计中没有太多的复杂的肌理与装饰,简单的欧式风情就足以让我们能感受到优雅的氛围,让简欧的感觉包围着我们,使得整体效果比预想的还要好。在别墅中尽量采用比较低调
京城雅居别墅250平简欧风格设计方案卧室设计在别墅的设计中没有太多的复杂的肌理与装饰,简单的欧式风情就足以让我们能感受到优雅的氛围,让简欧的感觉包围着我们,使得整体效果比预想的还要好。在别墅中尽量采用
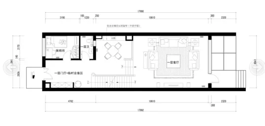
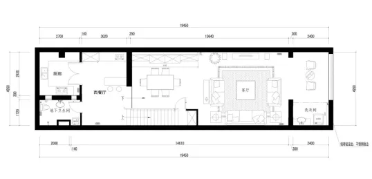
京城雅居别墅250平简欧风格设计方案户型图
装修案例报价:15万元半包
装饰公司:居然乐屋家装北四环店
地址:北京朝阳区北四环东路65号居然之家北四环店

#简欧风格 #四居室

2016-08-25 举报

说点什么...

00
在线咨询